Ekaterina Fadeeva
interior designer
Моя профессия - мой образ жизни!
Создаю интерьеры мечты уже более 6 лет. В моём кейсе уже более 120 спроектированных интерьеров, 80 из которых были реализованы моей командой профессионалов.
+7 (985) 397-05-85
design.fadeeva@gmail.com
Преимущества
Во-первых, с нами интересно! А, во-вторых...
  • Дизайн-проект "под ключ"
  • Лояльные условия сотрудничества
  • Создаю интерьер, отражающий характер
  • Авторский надзор с комплектацией
  • Своя команда проектировщиков
  • Подробные, детализированные и понятные чертежи
Взгляните на портфолио
Реализованный проект в ЖК Кварталы 21/19
Сравните реализованный проект с 3д визуализацией ниже!
Проект был реализован в 2018 году.
Базовый пакет чертежей
На первом этапе работ Вы получаете подробную консультацию на объекте, мы подробно разберём все аспекты отделки и вместе составим Техническое Задание, после чего я приступаю к разработке следующих чертежей:
  • Обмерный план
  • План возводимых перегородок/план-рекомендация по демонтажным работам
  • Планировочное решение (неограниченное количество вариантов)
  • План расположения розеток и электровыводов
  • План расположения осветительных приборов
  • План привязки выключателей
  • План размещения тёплых полов (при необходимости)
3D визуализация
После утверждения первого этапа мы приступаем к творческой части проекта - эскизирование и 3D. На этом этапе работ мы согласовываем эскизные коллажи и делаем 3D модель Вашего объекта. Примеры работ Вы можете наблюдать выше.
Спецификации и расширенный пакет чертежей
На 3-м этапе мы согласовываем все предметы мебели, отделочные материалы, приборы освещения и сантехническое оборудование. В спецификации я учитываю аспект "цена-качество" и подбираю материалы по Вашему бюджету. Вы получаете на руки следующий объём:
  • План напольных покрытий с указанием типа материалов и раскладкой
  • План укладки плинтусов
  • План монтажа потолочных конструкций
  • План-схема отделки стен с просчётом чистой площади и указанием материалов
  • Спецификация дверных и оконных проёмов
  • Техническая карта сантехнического и инженерного оборудования
  • Чертежи заказных позиций
  • Развёртки всех помещений с подробным указанием декоративных элементов
  • Раскладка плитки по стенам и полу
  • Спецификация по блокам: отделочные материалы, сантехническое оборудование, электрооборудование и приборы освещения, предметы мебели и декора.
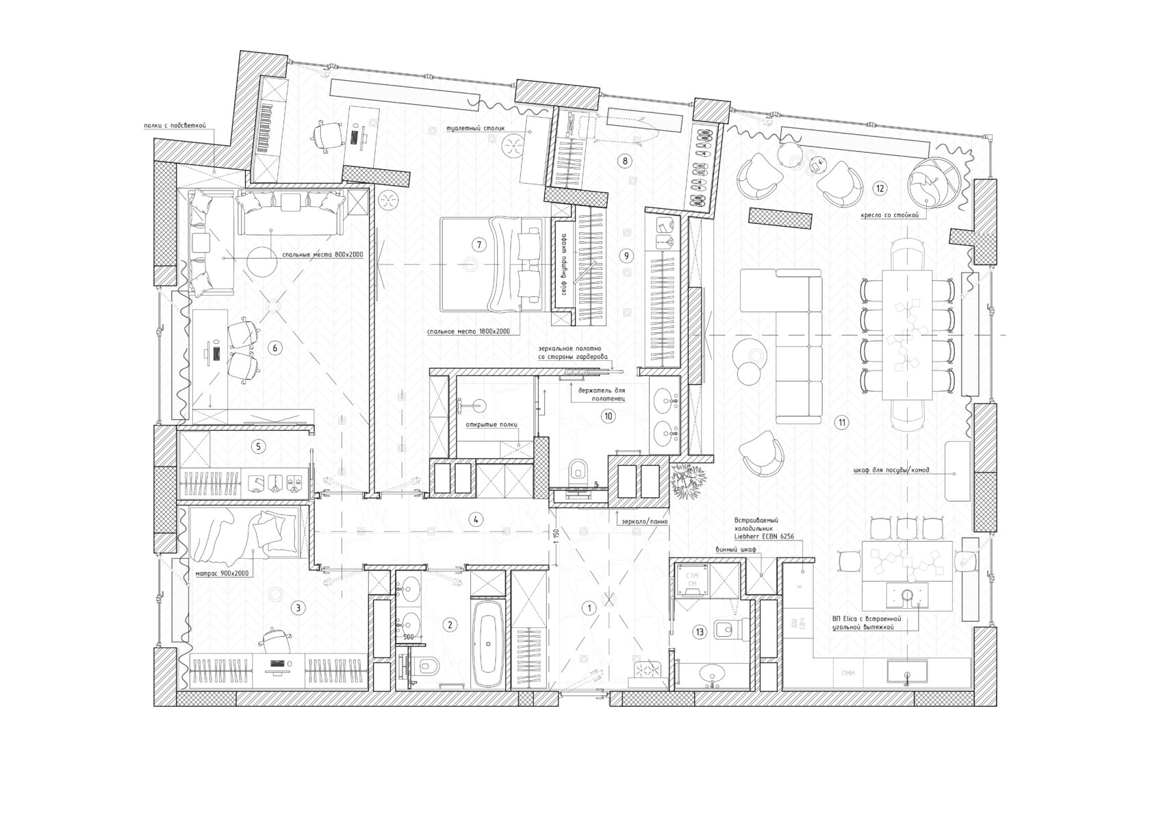
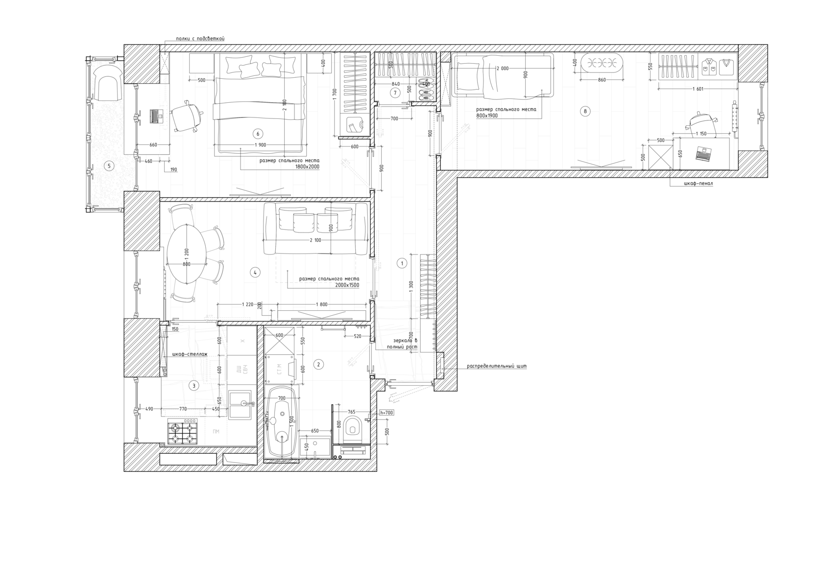
Планировочное решение
В этом разделе Вы можете посмотреть на планировки квартир из разных сегментов.
Рассчитать стоимость дизайн-проекта
Заполните форму, и я перезвоню Вам, а так же пришлю на электронный адрес почты коммерческое предложение
Нажимая на кнопку, вы даете согласие на обработку персональных данных и соглашаетесь c политикой конфиденциальности
КОНТАКТЫ
+7 (985) 397-05-85
design.fadeeva@gmail.com

Я работаю с понедельника по пятницу с 9:00 до 19:00
Выезжаю к Вам на объект и по выходным с 10:00 до 17:00!
Все фотоматериалы принадлежат их владельцам и используются для демонстрации. Пожалуйста, не используйте контент шаблона в коммерческих целях.